Rénovation et transformation Tertiare Portet-sur-Garonne (31) – Société SAMAT GROUP
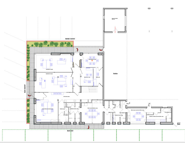
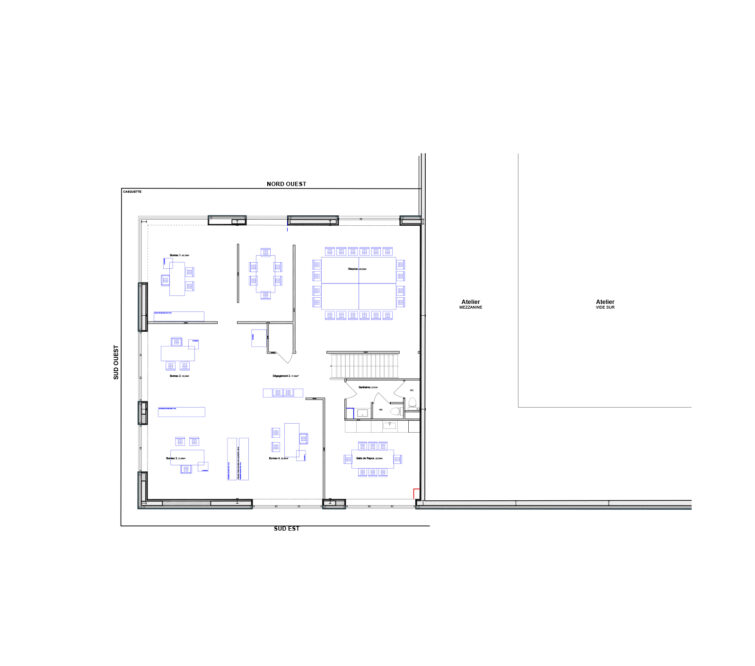
Programme: Tertiaire – Travaux sur existants
Mission de Maitrise d’oeuvre pour la construction de locaux d’activités – 2025
Fiche Technique:
Maîtrise d’ouvrage: Privée, SAMAT GROUP – SIP
Montant des travaux: 720 k euros HT
Superficie: 700 m²
Délais: 8 mois
Livraison: 2026
Mission Complète: Études de conception et suivi de travaux
Mandataire:
Le2bis, Atelier – Architecte-Urbaniste OPQU
Guillaume Hubert – Architecte DPLG
Stephanie Monferran Carpentier – Architecte DPLG
Cotraitant:
EAE Eric Alcquie Economiste
BE Thermique: NEORKA
Entreprises:
Gros oeuvre: RCB
Charpente Metallique / Bardage: EFFIRA
CVC: CIRKAD
Menuiseries ext: LONGAGES MENUISERIES
Second oeuvre: PRESTOBAT
Serrurerie: FACON METAL
Crédits photo, Le2bis, Atelier 2025




