Architecture, aménagement urbain, assistance à maitrise d’ouvrage, études et maîtrise d’œuvre… Une vision globale, un projet partagé! Architecte et urbaniste – Toulouse – Occitanie.
L’Atelier Le2bis réunit des architectes et urbanistes engagés dans la transformation durable des territoires. Basés à Toulouse, Montpellier et Biarritz, nous accompagnons collectivités, entreprises et particuliers dans des projets d’architecture, de rénovation, d’extension, de réhabilitation et d’aménagements publics. Notre pratique associe exigence technique, sensibilité architecturale et compréhension fine des enjeux locaux.
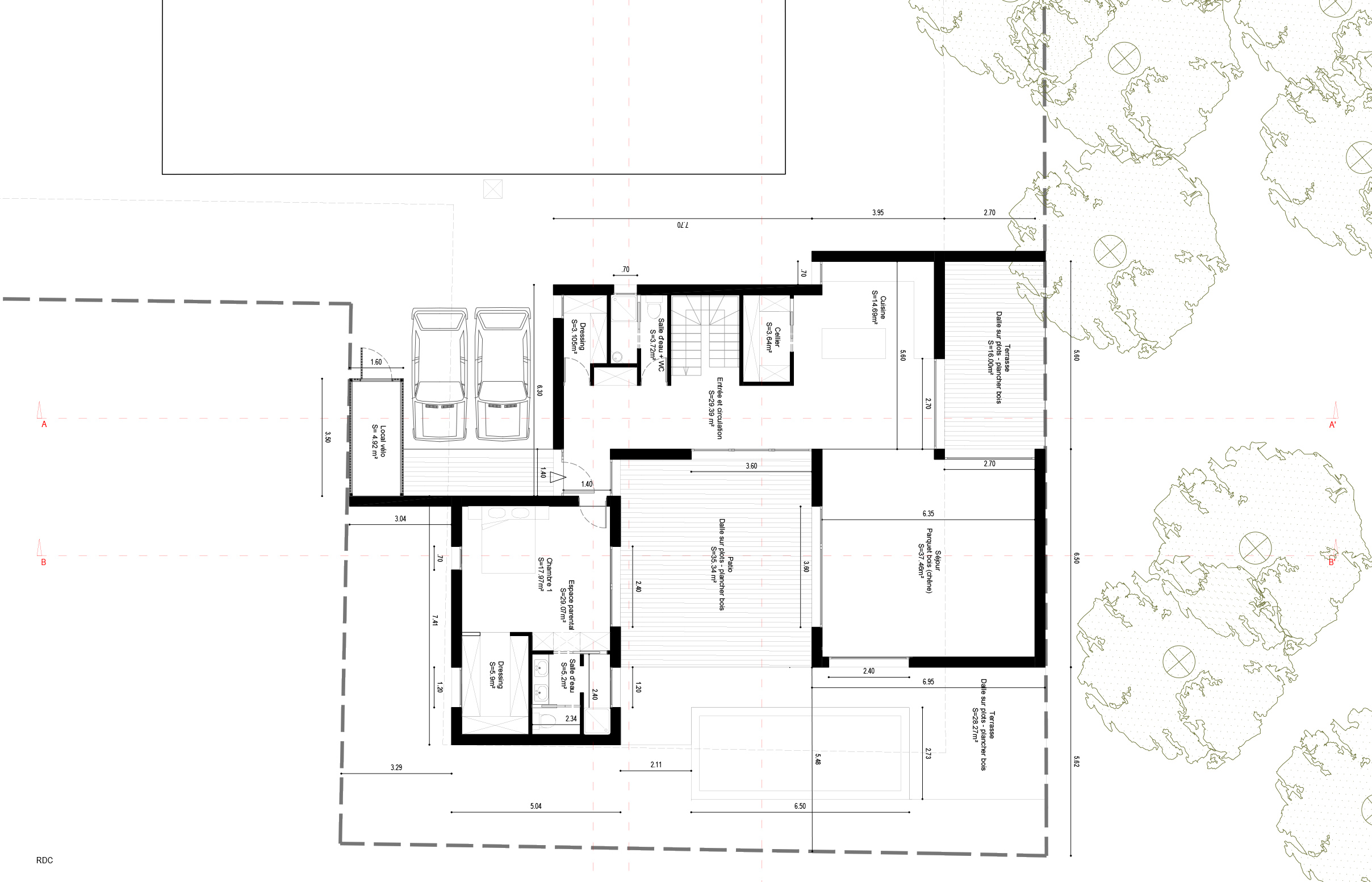
Nous développons des projets de logements, d’équipements publics, d’espaces publics et d’aménagements paysagers, avec une attention constante portée aux usages, aux matériaux biosourcés et à la qualité environnementale.
Notre approche associe sobriété, précision technique et compréhension fine des contextes urbains. Nous accompagnons maîtres d’ouvrage publics et privés dans la conception et la réalisation de projets durables et adaptés aux territoires.
20+ ans d’expérience cumulée • Projets publics & privés • Approche durable & contextuelle
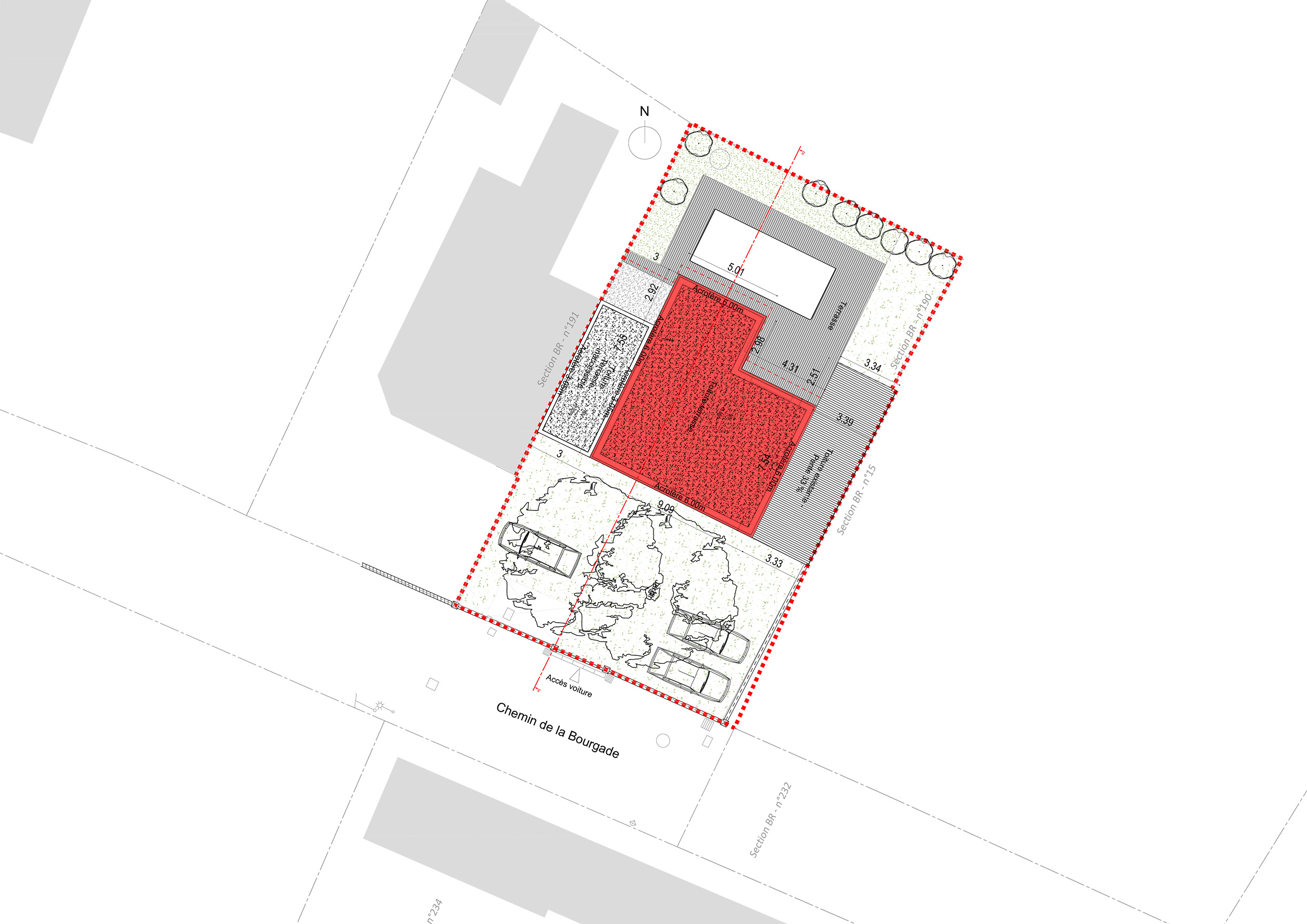
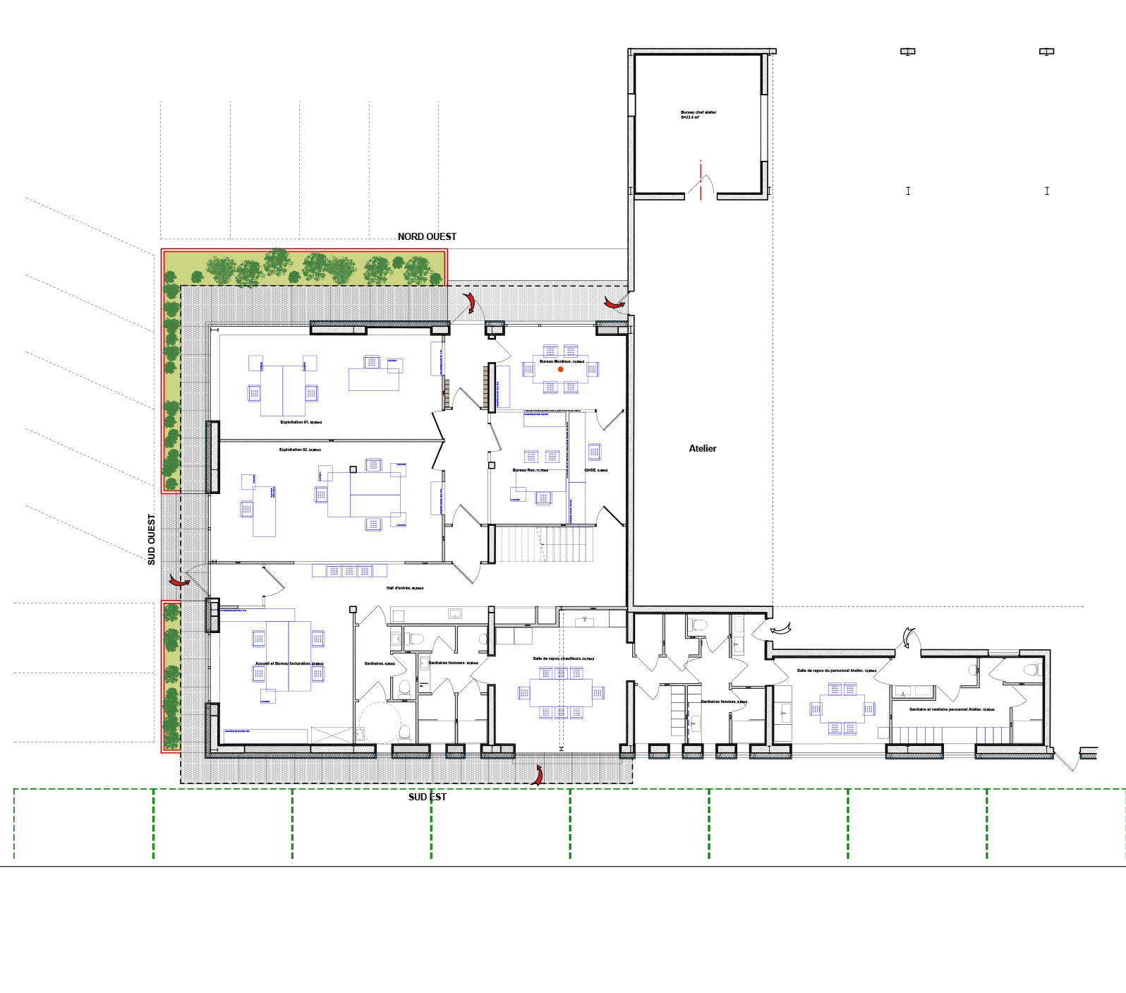
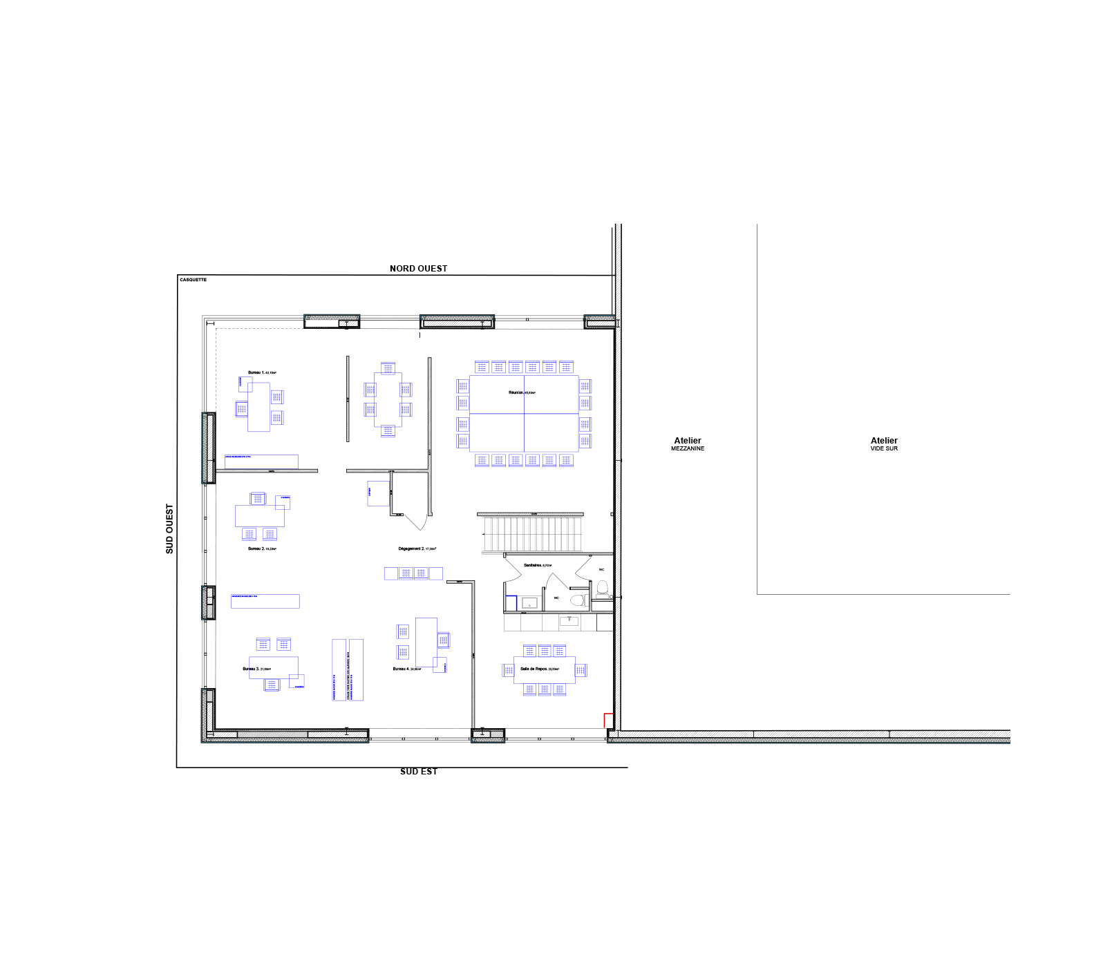
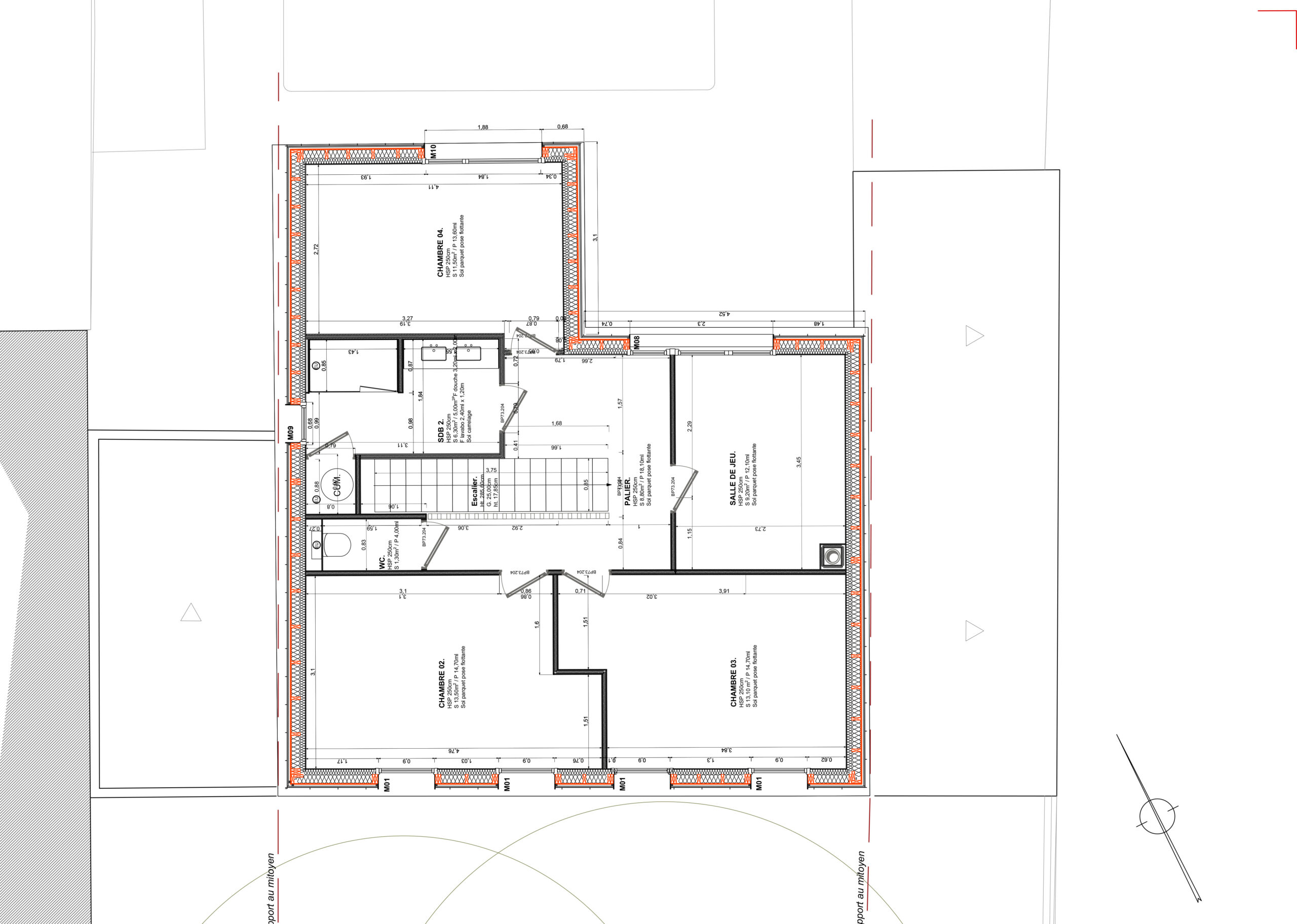
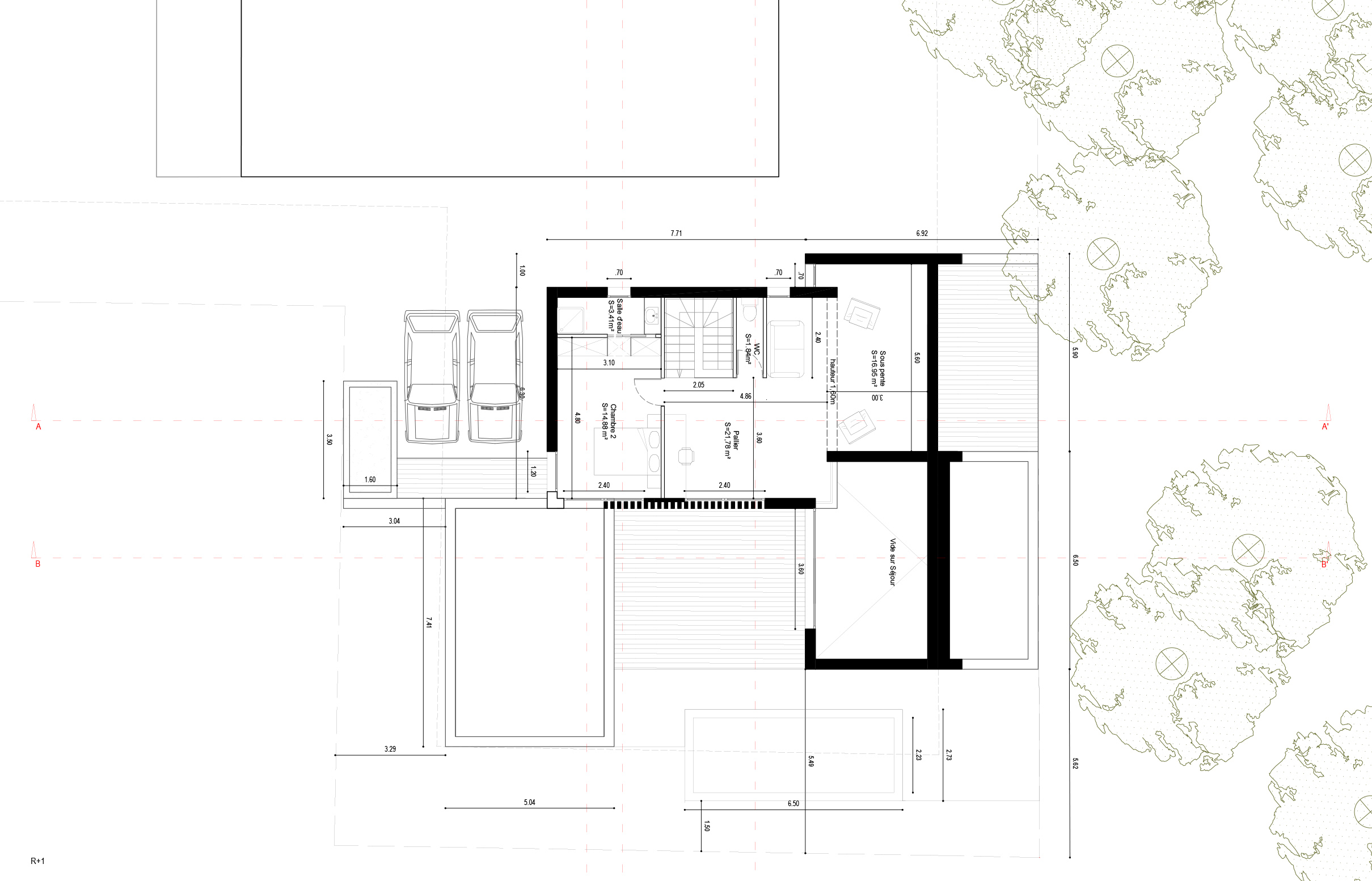
L’atelier intervient sur une grande diversité de programmes : logements, équipements collectifs, espaces publics, aménagements paysagers, transformations du bâti existant, extensions, surélévations et projets de rénovation. Les interventions couvrent aussi bien des opérations privées que des missions pour des collectivités.
Les interventions sur l’existant reposent sur une compréhension fine des structures, des matériaux traditionnels, des pathologies éventuelles et des logiques constructives. Cette approche permet de proposer des solutions adaptées, durables et cohérentes avec les usages contemporains.
Les projets intègrent autant que possible des matériaux issus de filières locales : bois régional, terre crue, enduits minéraux, pierre calcaire ou tuiles canal. Ces choix renforcent l’ancrage territorial, réduisent l’impact environnemental et améliorent le confort thermique.
Les projets s’appuient sur des dispositifs passifs : inertie thermique, ventilation naturelle, protections solaires, continuités végétales, gestion de l’eau et rafraîchissement naturel. Cette approche permet d’améliorer le confort d’été et de réduire les consommations énergétiques.
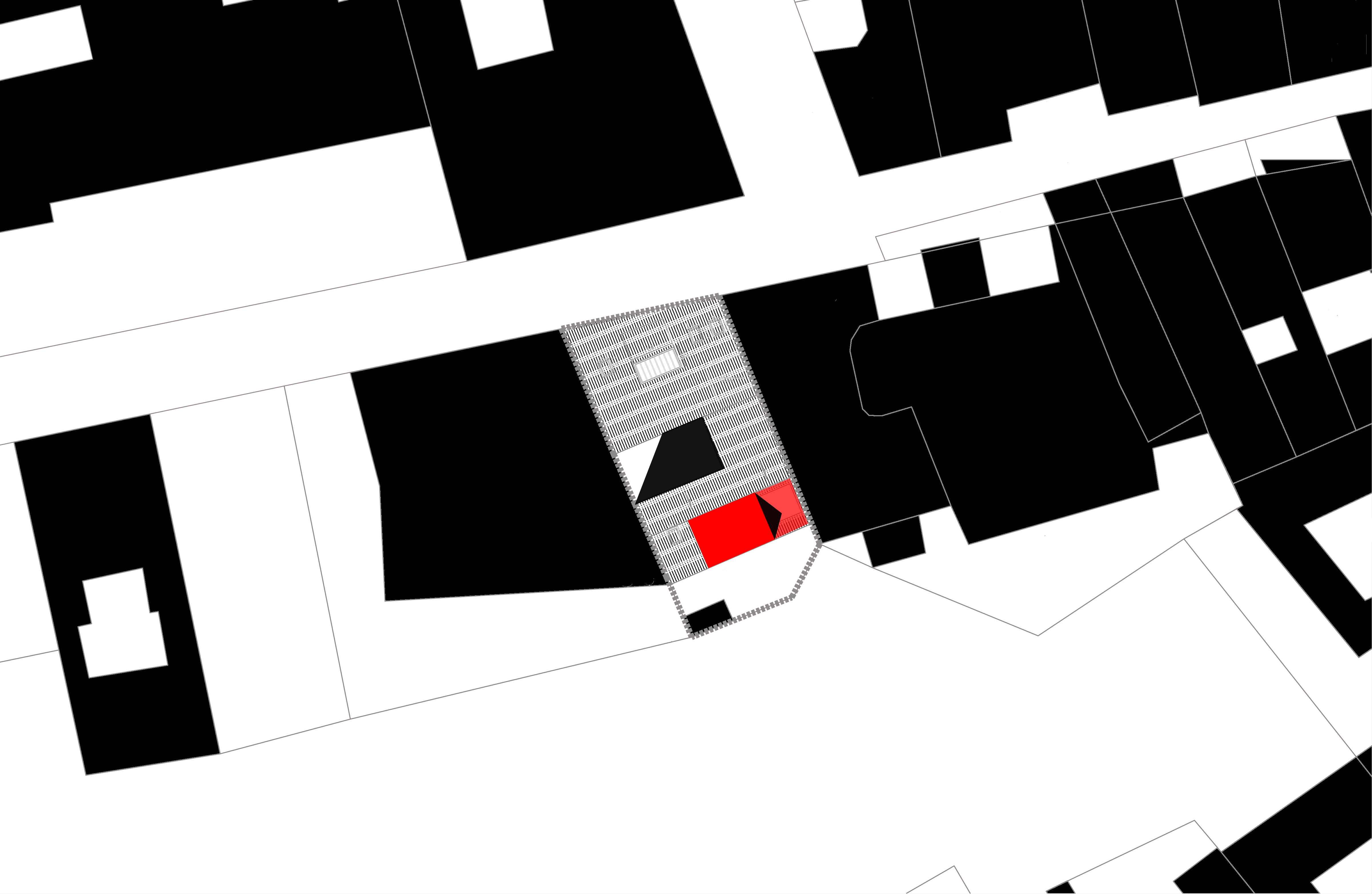
Les études reposent sur une analyse précise des tissus existants : morphologie, densités, typologies bâties, mobilités, réseaux, paysages et dynamiques sociales. Cette lecture permet de proposer des stratégies adaptées, cohérentes et durables.
L’atelier mobilise des outils de concertation : ateliers participatifs, marches exploratoires, enquêtes d’usages, entretiens et cartographies sensibles. Ces démarches permettent d’ajuster les propositions et de garantir la pertinence des choix.
La maîtrise d’œuvre inclut la consultation des entreprises, l’analyse des offres, la coordination des intervenants, le contrôle de la conformité et le suivi de chantier. Cette vigilance assure la qualité d’exécution et la cohérence entre conception et réalisation.
Architecte urbaniste à Toulouse et en Occitanie. Architecture durable, rénovation, réhabilitation, extensions, surélévations, constructions neuves, transformation du bâti, performance énergétique, matériaux biosourcés. Urbanisme opérationnel, reconversion de friches, diagnostics urbains, stratégies territoriales et aménagements paysagers.

Pour offrir les meilleures expériences, nous utilisons des technologies telles que les cookies pour stocker et/ou accéder aux informations des appareils. Le fait de consentir à ces technologies nous permettra de traiter des données telles que le comportement de navigation ou les ID uniques sur ce site. Le fait de ne pas consentir ou de retirer son consentement peut avoir un effet négatif sur certaines caractéristiques et fonctions.












